2 d cad drawing of hydro pneumatic system auto cad software
Description
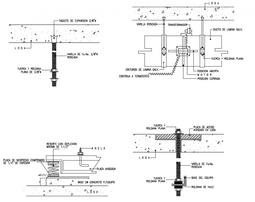
2d cad drawing of hydro pneumatics system autocad software detailed with four drawings with connected pipelines through hydra and mentioned drawing and dimension for hydra system.
Uploaded by:
Eiz
Luna

